





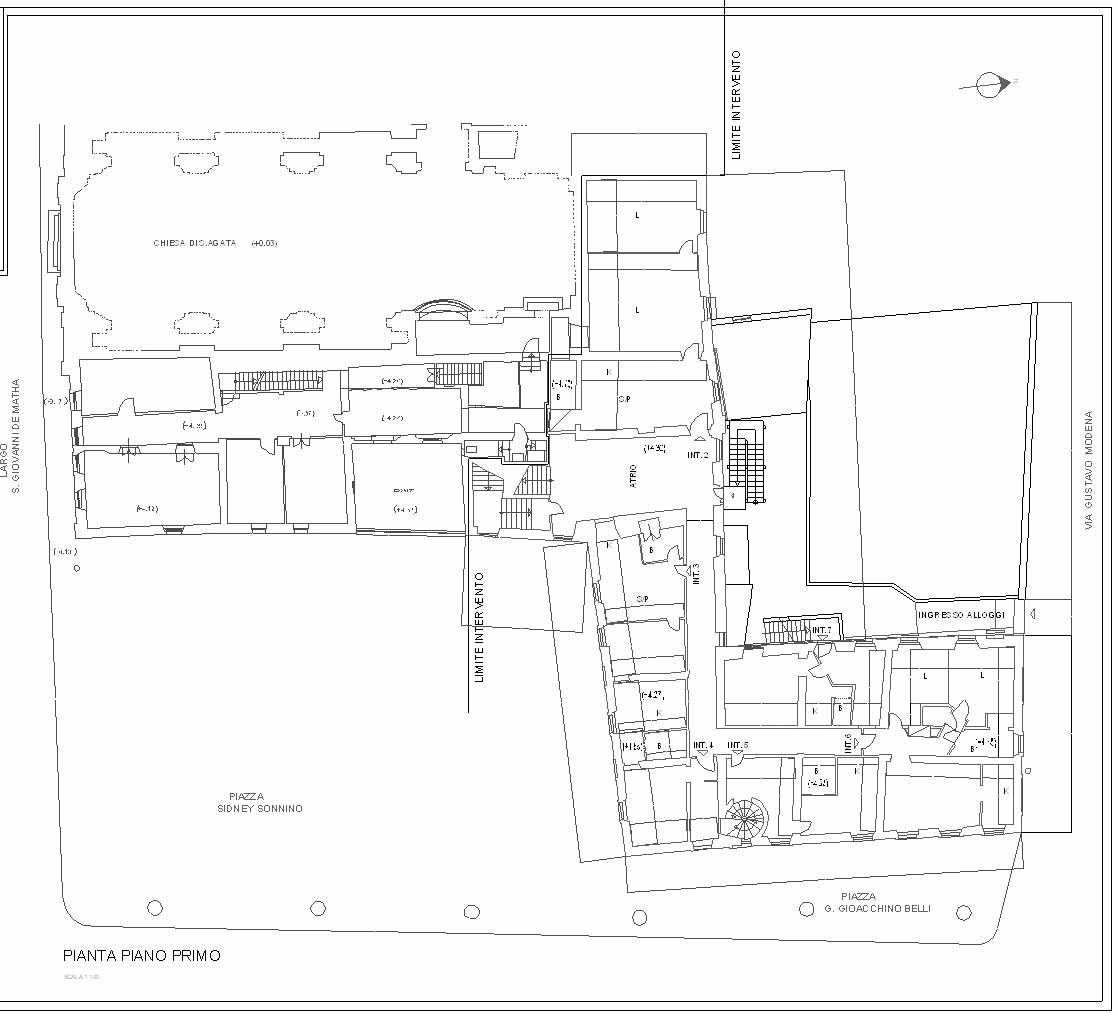
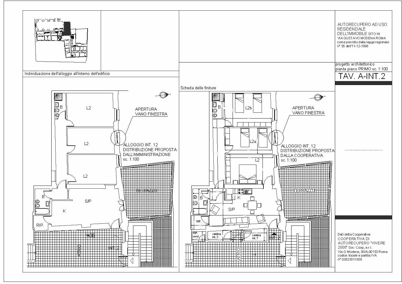
Progetto partecipato in autocostruzione per la realizzazione di 13 alloggi di edilizia Economica e Popolare in antico convento del XVII sec sito in Roma, via Gustavo Modena, P.zza Gioacchino Belli (Trastevere)
CEO e co-fondatore di Archabout, Maurizio è un architetto e accademico con una lunga carriera professionale e di ricerca sviluppata nei campi della progettazione architettonica, della progettazione urbana presso l'Università di Roma "La Sapienza" e presso l'Università di Napoli "Federico II". È impegnato in attività Professionali, di Studio, Ricerca e Seminari Didattici dal 1990. I temi principali della sua attività professionale e di ricerca sono incentrati sui principi della progettazione ecologica: i rapporti tra architettura e città, le dinamiche di trasformazione, l'identità e la valorizzazione delle specificità storiche e delle realtà urbane, la progettazione ambientale, la progettazione edilizia sostenibile e partecipata.