Vendita Terreno edificabile in Cavezzo (MO)

Zona: Crocicchio Zeni | Via: Dosso

TRATTATIVA RISERVATA
Superficie Terreno  1500 m2
Richiedi R.A.T.
Vendita Terreno edificabile CavezzoVendita Terreno edificabile CavezzoVendita Terreno edificabile CavezzoVendita Terreno edificabile CavezzoVendita Terreno edificabile CavezzoVendita Terreno edificabile CavezzoVendita Terreno edificabile CavezzoVendita Terreno edificabile CavezzoVendita Terreno edificabile CavezzoVendita Terreno edificabile CavezzoVendita Terreno edificabile Cavezzo

Video:

Descrizione:

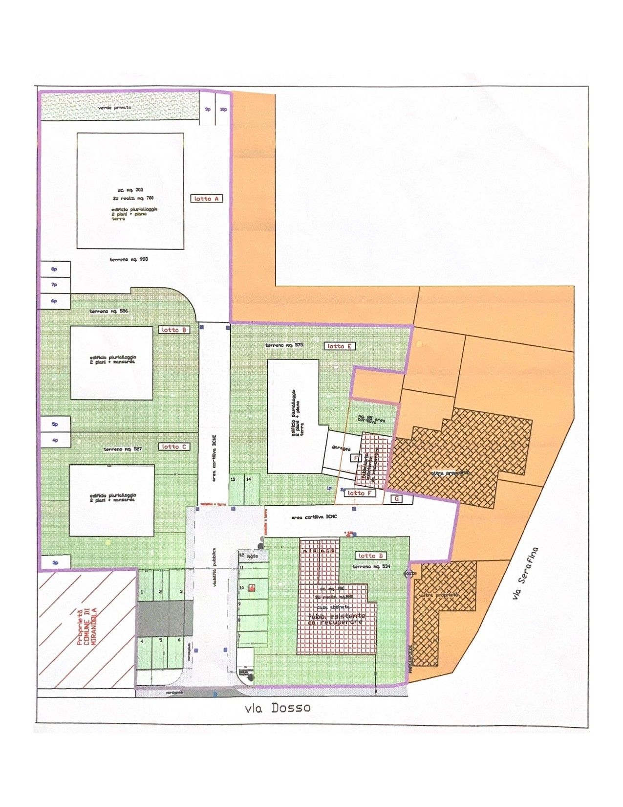
TERRENO IN VENDITA EDIFICABILE A MIRANDOLA Nella località Crocicchio Zeni, terreno in vendita con lotti edificabili in zona residenziale e tranquilla con vista sulla campagna. Suddivisione del terreno nei 4 lotti già approvata dal Comune e inserita nel Piano Regolatore (come progetto allegato). Uno dei 4 lotti presenta già un edificio, gli altri 3 da costruire completamente. Ingresso comune da via Dosso con posti auto disponibili e poi ingressi separati per ciascun lotto.

Caratteristiche Terreno:

Dettagli Annuncio
  • Riferimento: n.d.
  • Contratto: Vendita
  • Tipologia: Terreno edificabile
  • Superficie: 1500 m2

Rapporto Ambientale del Terreno

Inquadramento Geografico - Morfologia - Sismicità - Suolo - Clima - Ventosità - Irraggiamento Solare

In un solo documento, tutte le informazioni di cui hai bisogno per decidere al meglio se investire su un Terreno che ti interessa. Il Rapporto Ambientale del Terreno è una ESCLUSIVA Immobilgreen.it

Maggiori Informazioni

Potrebbero Interessarti Anche


Richiedi Maggiori Informazioni

Eleonora Barbieri

Eleonora Barbieri

Scopri tutti gli Annunci

  Mostra Telefono
Hai bisogno di un Mutuo?   Si   No


pop

Registrati Subito per Richiedere Informazioni

Servizio Gratuito - Massima Tutela della Privacy

Almeno 8 caratteri, che contenga lettere e numeri


oppure

Accedi con Google

Inserisci il numero di telefono

 
Dove costruire casa

Dove Vorresti Costruire?

Seleziona Provincia e Comune

Abiti nello stesso Comune?

Hai un terreno?

Hai Già un Terreno?

SI
NO
Hai un terreno?

Hai il terreno




Non hai il terreno




Attenzione!

Hai indicato che non sei ancora in possesso di un terreno e lo stai ancora cercando. Purtroppo, non avendo ancora il terreno, non potremo metterti in contatto con i costruttori della tua zona e non puoi ottenere un preventivo su misura.

Torna indietro e modifica i parametri per proseguire con il flusso

Possiamo Aiutarti!
Se ti affidi a noi, possiamo trovare il terreno giusto per te in vendita nella tua Zona! Scopri il nostro esclusivo servizio di ricerca terreni!

Scopri il Servizio Radar Terreni

Se invece vuoi capire nello specifico quanto costa l'intera operazione costruttiva, incluse le spese oltre casa, puoi richiedere il nostro esclusivo Rapporto di Costruzione.

Vai al Rapporto di Costruzione

vai avanti comunque

Hai un terreno?

Il Tuo Terreno è...



Sei un Imprenditore Agricolo?

SI
NO

Di quanti metri quadri dovrà essere la tua casa?

Qual è il tuo budget?

indicare la cifra massima che vorresti investire per costruire (incluse oneri, tasse, progetto etc)

Hai già un Progetto Architettonico?

SI
Abbiamo un tecnico che si occupa del progetto
NO
Siamo in cerca di un tecnico

Attenzione!

Per abitazioni in Bioedilizia Sicure Salubri e Sostenibili Chiavi in Mano, il rapporto Budget/Superficie rischia di non essere sostenibile. Ti consigliamo quindi di considerare una superificie inferiore o di aumentare un po' il budget per la costruzione

Torna indietro e modifica i parametri Superficie e Budget

Se decidi di mantenere questo budget e questa metratura, possiamo indirizzarti su tipologie di abitazioni con performance energetiche, di comfort e strutturali inferiori.

Mostrami Soluzioni Alternative

Vuoi capire nello specifico quanto costa l'intera operazione costruttiva, incluse le spese oltre casa? Scegli il modello dal catalogo e ottieni il Rapporto di Costruzione.

Vai al Rapporto di Costruzione

Vuoi Ricevere un Preventivo per il Tuo Progetto?

SI
NO

Come immagini gli spazi nella tua casa?

Soggiorno
-
0
+
Camera da letto
-
0
+
Cameretta
-
0
+
Sala da pranzo
-
0
+
Cucina
-
0
+
Bagno
-
0
+
Studio/Hobby
-
0
+
Cantina
SI   NO

Vuoi Parlare della tua idea progettuale con un'Azienda Costruttrice o un Tecnico della tua Zona?

SI
NO

Attenzione!

Le abitazioni Prefabbricate in Bioedilizia Sicure Salubri e Sostenibili Chiavi in Mano che vedi nel catalogo di Immobilgreen.it hanno un costo medio che parte dai 1400-1600 €/mq, escluse molte voci tra cui progetto, platea, oneri e tasse.

Per avere una stima precisa dell'investimento richiesto, INCLUSE le spese oltre casa, richiedi il nostro Rapporto di Costruzione.

Rapporto di Costruzione

Torna indietro

Ti Ringraziamo per la tua Richiesta!

Sarai ricontattato presto da un nostro consulente per approfondire nel dettaglio le tue esigenze e per indirizzarti al meglio nel percorso di realizzazione del tuo sogno

Intanto naviga il catalogo con i Modelli di Case in Bioedilizia dei migliori Costruttori Italiani

Catalogo Case in Legno

Vai alla Tua Area Utente

Immobilgreen.it ti aiuta a costruire, riqualificare, scegliere una casa green